723 Vesitorni
Asemakaavan muutos
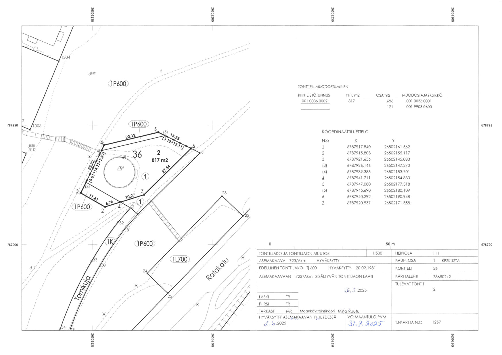
Suunnittelualue
Asemakaavan muutos koskee Keskustan (1) kaupunginosassa sijaitsevaa vesitornin tonttia, Tornikujan katualuetta, osaa Vesitorninharjun puistoalueesta sekä Ratakadun varressa sijaitsevaa pysäköintialuetta.
Tavoitteet ja sisältö
Asemakaavan muutoksen tavoitteena on vesitornin käyttötarkoituksen laajentaminen siten, että se mahdollistaa nykyisten tilojen muuttamisen asuinkäyttöön.
Kaavatyön eteneminen
Aloitusvaihe (valmis)
Elinvoimalautakunta 16.10.2024 päätti laittaa vireille asemakaavan muutoksen 723 Vesitorni.
Osallistumis- ja arviointisuunnitelma (OAS) nähtävillä 15.11.2024-8.4.2025
Luonnosvaihe (valmis)
Kaavaluonnos nähtävillä 18.1.-2.2.2025
Ehdotusvaihe (valmis)
Kaupunkiympäristölautakunta 3.4.2025 päätti asettaa kaavaehdotuksen 723 Vesitorni nähtäville.
Kaavaehdotus nähtävillä 8.4.-9.5.2025
Hyväksymisvaihe (valmis)
Valtuusto hyväksyi kaavaehdotuksen 2.6.2025
Voimaantulo (lainvoimainen)
Lainvoimaisuuskuulutus 31.7.2025

Kaupunkisuunnittelu
Kaupunkisuunnittelun tehtäviä ovat mm. asema-, ranta-asema- ja yleiskaavoihin liittyvät asiat.
Sijainti
Rauhankatu 3
18100 Heinola
Palvelupaikka kartalla
Palveluajat
Maanantai-Perjantai 08:45-15:00
